Louis : 13501169498

扫码咨询

意大利移民
您当前的位置 >>> 首页 >>> 米兰房产
米兰市区中心火车站附近艺术大厦精装修公寓房出售
添加日期:6/3/2019 4:57:14 PM    访问次数:857
意大利移民

 

 本大厦位于米兰中心火车站附近,具体位置在Via Lucini 19号,由原来一栋办公楼经过著名设计师Giorgio Pozzi和Elisabetta Pozzi精心设计建筑改造而成,门窗、墙面及楼面均采用了特级隔音隔热材料,节能等级为A++,室内装修标准为五星级装修标准,整栋建筑充满了现代艺术气息,建筑内外保留了艺术家的原创真品。

 

 
 
大厦拥有宽广的公共场地和庭院,拥有100多个地面停车位。
 
 
 
 
 
 
大厦周边介绍:位于米兰GRECO大型购物广场对面,400米生活圈里:银行、大型购物中心、学校、邮局、健身中心、药店、饭店、宾馆、华人教堂及汽车修理厂等一应俱全,生活十分方便;交通出行便利,楼下81路、43路和87路2条公交线路公交站,均可直达米兰中心火车站;
 
 
离米兰市中心DUOMO广场4.8公里;离米兰可卡大学仅为2.3公里比可卡,81路公交10分钟直接到达。
 
 
 
 
 
 
 
 
距离紫线地铁ISTRIA站1.2公里;
 
 
离米兰中心火车站2.3公里,81路10分钟直接到达;
 
 
 
 
 
大厦资料介绍:
 
 
地点:VIA LUCINI 19
 
 
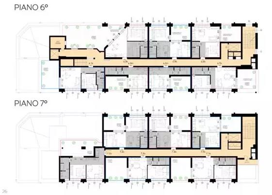
房型:2室2厅1厨1卫、1室2厅1厨1卫、1室1厨1卫多种户型,0层带花园,6、7层大露台,1~5层不带阳台,在售现房72套。
 
 
面积:从38平米至128平米,层高3.2米。
 
 
楼层:地上8层公寓房(0~7层),地下1层(-1层为健身房,酒吧及室内停车库,带3步电梯小高层。
 
 
产权:永久产权
 
 
品质:全屋智能,大金中央空调,绿色环保五星级精装修,家具电器及生活用品一应俱全,拎包入住!
 
 
售价:单价为5000欧元/平米起,房价不含税金、中介费和公证过户费。
 
 
 
 
 
房屋室内照片
 
 
 
 
 
 
 
 
 
 
 
 
房型图